十勝の「快適な生活環境」をプロデュース
丸富士三浦建設株式会社
pride
こだわり
consulting
住まいのご相談
works
物件情報
募集中・販売中
実績
info
お知らせ
company
企業情報
会社案内
採用情報
tel
0120-91-6162
contact
HOME
物件情報
MZ宝来東町
募集中
賃貸
アパート・マンション
MZ宝来東町
物件情報
物件名
MZ宝来東町
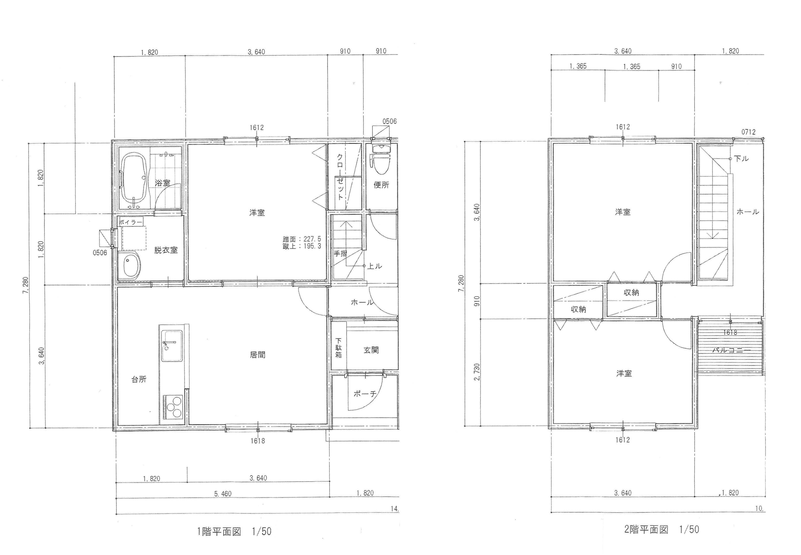
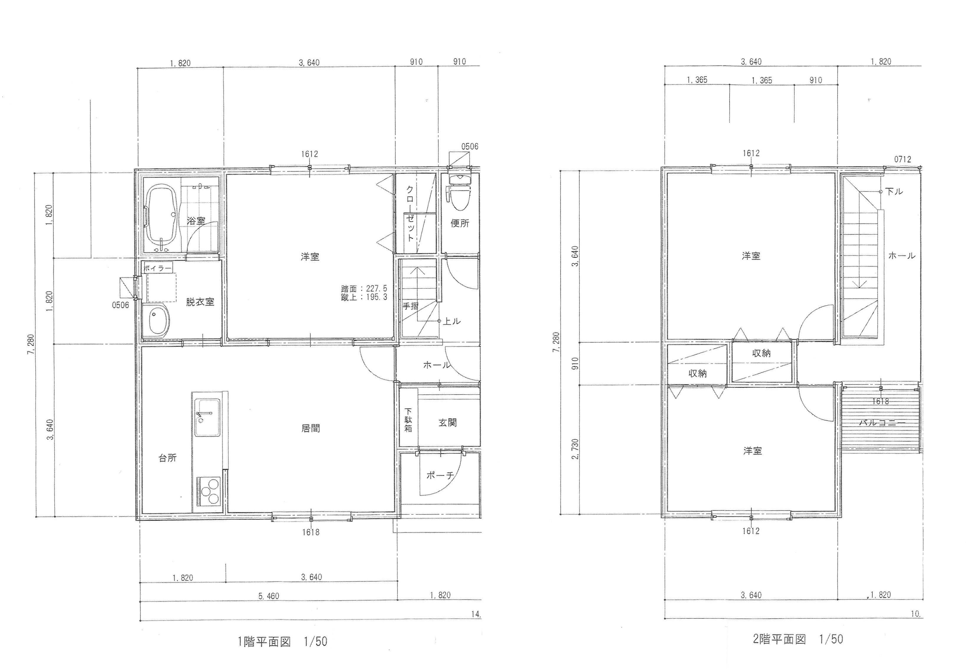
間取り
3LDK
所在地
河東郡音更町
宝来東町南1丁目3番地6
建物構造
木造
建物階数
2階
建物面積
85.29m³
築年
2004年
設備
灯油・ガス
建物の詳細情報
メゾネット
公開日
2021-04-01
物件番号
6-20250929-15
この物件の部屋情報
募集中
部屋番号
西
間取り
3LDK
賃料
68,000円
部屋階数
メゾネット 西・東
物件のお問合せはこちら
一覧へ戻る